福岡市中央区のマンションにて、水回りを中心としたリフォーム工事を行いました。
ご予算は約500万円、工期は約3週間です。
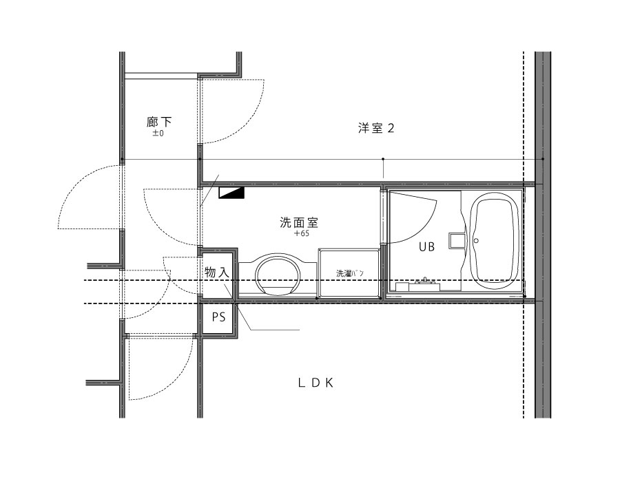
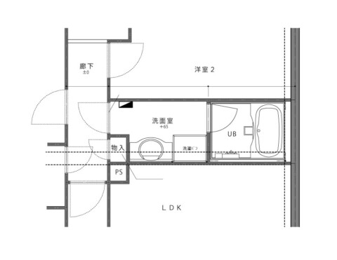
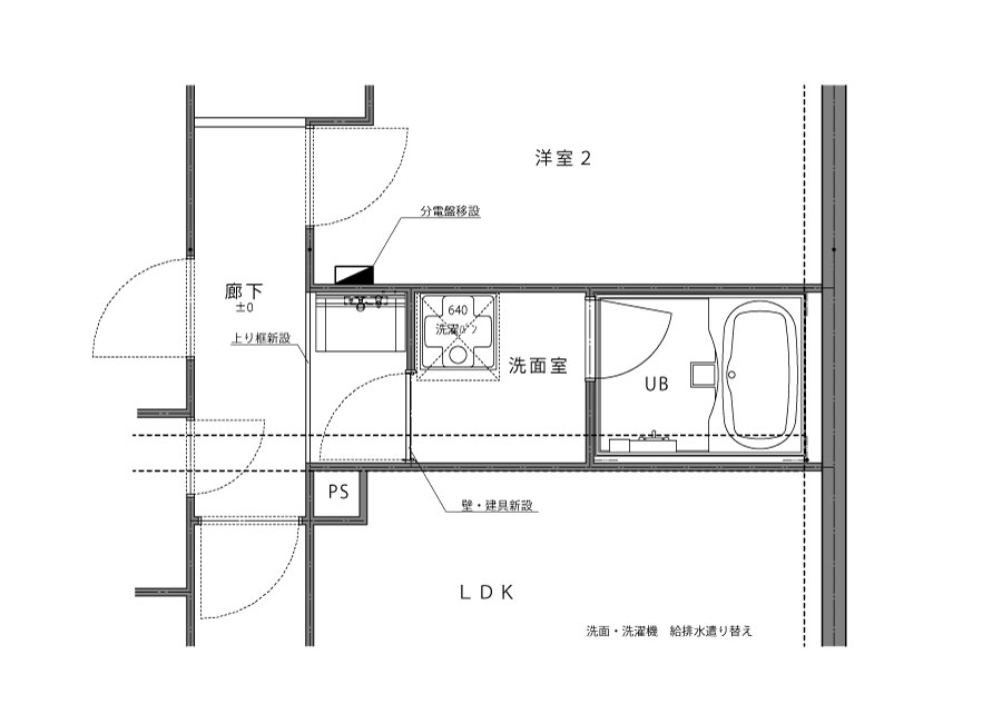
今回の福岡市リフォームでは、「おしゃれで統一感のある空間」をテーマに、キッチン・洗面・トイレ・ユニットバス・廊下・リビング床・建具・クロスまで一新しました。
キッチンには、リクシルのシステムキッチン「シエラS」を採用。
カップボードもシエラSで揃え、空間に統一感を持たせています。
ユニットバスはリクシルの「リノビオ」。
洗面化粧台はリクシルの「ピアラ」を設置しました。
洗面空間には可愛いタイル柄のクッションフロアを使用し、取手にはさりげなく黒を取り入れてアクセントをプラス。細部までこだわったおしゃれな水回りに仕上げています。
廊下やリビングの床は、パナソニック「べリティス ベースコートL45」に張替え。
建具も一新し、クロスも全面貼替えを行いました。
建具やクロスがひと昔前の印象だった住まいが、明るく洗練された空間へと生まれ変わりました。
巾木など細部まで統一することで、すっきりとした仕上がりになっています。
福岡市でマンションリフォームや水回りリフォームをご検討中の方にとって、参考になる施工事例です。
お施主様も家族一同喜んでいらっしゃったとのことでスタッフ一同も大変嬉しく思いますT様ご依頼誠にありがとうございました!!
倉興株式会社公式HPはこちらをクリック↓

福岡市の外壁塗装 屋根リフォームはこちらをクリック↓

福岡市リフォーム イベントなどのインスタはこちらをクリック↓

福岡市で戸建て・マンションのリノベーション、リフォームをご検討中の方は、ぜひお気軽にご相談ください。
福岡市中央区・早良区・城南区・博多区をはじめ、福岡県全域対応しております。
当社では、
エコキュート・ガス給湯器の交換をはじめ、
無垢材や珪藻土などの自然素材を使用したリフォーム、
福岡市の屋根・外壁のメンテナンスまで、
住まいに関する工事全般を承っております。
住まいの状況やご予算に合わせて、
無理のないご提案を大切にしています。
ご相談は、
LINEからもお気軽にお問い合わせいただけます。
お得な情報や施工事例も配信中です。
※現地調査・お見積りは無料です。
