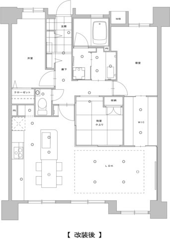
倉興が掲げる「真善美」のうち、“真”とは、誠実さと丁寧さで空間をつくる姿勢そのものを表しています。今回ご紹介する邸宅は、その“真”を静かに体現した、倉興のハイエンドラインを象徴する一作です。
完全オーダーで仕上げたキッチンには、職人が手仕事で組み上げたリブ加工をあしらい、茶室の格子建具と響き合うように設計しました。和と洋が自然に調和し、落ち着きの中に品のある美しさが生まれています。
間接照明が格子に落とす陰影は、木のあたたかさや素材の深みをそっと引き立て、空間にやさしい表情を添えます。
倉興の“真”とは、形をつくるだけでなく、お客様の想いにまっすぐ向き合い、その気持ちを丁寧に形にしていくこと。大工職人の誠実な手仕事と、スタッフ全員の思いやりが込められた仕上がりです。
まこととは、このしつらえ。
倉興のプロフェッショナルが、お客様の本質に寄り添った空間をお届けします。
オーダーの住まい。倉興のハイエンド職人集団にお任せください。
ガイソー福岡中央店はこちらをクリック↓
インスタはこちらをクリック↓

戸建て マンションのリノベーション リフォーム
太陽光発電、蓄電池、エコキュート、ガス給湯器交換
無垢材 珪藻土などを使用したエコリフォーム、屋根 外壁のメンテナンス全般
是非当社にお声がけください
LINEからお気軽にご相談いただけます!
お得な情報配信中!
